W ostatnim czasie spędziłam sporo czasu na przeglądaniu projektów domów,szukaniu inspiracji na ten wymarzony.
Moją uwagę przykuł jeden z nich do tego stopnia, że postanowiłam się z Wami nim podzielić. Czyżbym znalazła dom dla nas?
Moją uwagę przykuł jeden z nich do tego stopnia, że postanowiłam się z Wami nim podzielić. Czyżbym znalazła dom dla nas?
Mowa tu o p
rojekcie domu Promienny dzień - Murator M128, który znalazłam na stronie https://www.extradom.pl/.Ten wzór w moim odczuciu to propozycja domu dla tych, dla których ważne jest znalezienie domu nowoczesnego o prostej, klasycznej i przejrzystej bryle. Jego wygląd zewnętrzy jest urozmaicony poprzez balkony francuskie, które zostały zaprojektowane w trzech sypialniach znajdujących się na poddaszu.
Nowoczesna i zarazem bardzo elegancka elewacja dodaje całemu budynkowi unikalnego charakteru.
Projekt
domu Murator M128 Promienny dzień, źródło: extradom.pl
DLACZEGO TEN?
Największą zaletą projektu domu Murator M128 Promienny dzień jest w moim odczuciu bardzo dobrze przemyślany układ wnętrz.
Odpowiednie usytuowanie pomieszczeń pozwala w pełni korzystać z uroków domu. Kuchnia połączona z jadalnią, dla mnie ulubione rozwiązanie tworzy doskonałą przestrzeń na chwile spędzane wspólnie z rodziną czy przyjaciółmi na wspólnych posiłkach.
Dzięki dużym przeszkleniom, które zostały rozplanowane na dwóch kondygnacjach strefa ta jest doskonale oświetlona. Jest to doskonałe miejsce na relaks oraz popołudniowe czytanie książek.
Dodatkową zaletą salonu jest wyjście na taras, które pozwala na wpuszczenie do wnętrza świeżego powietrza i jeszcze większej ilości promieni słonecznych.
Tego typu rozwiązanie to moje największe marzenie. Odkąd pamiętam marzyłam mieć w salonie takie okna na całej ścianie, żeby móc bez problemu wyjść na taras, będący jednocześnie przedłużeniem salonu.
Na takim tarasie można miło spędzać czas w otoczeniu przyrody lub urządzać przyjęcia dla znajomych w ogrodzie. Na parterze znajduje się także pokój, który ma osobne wyjście na taras.Może docelowo służyć ona jako pokój gościnny ale dla mnie to idealne miejsce na gabinet- potrzebny mojemu M. do pracy, ponieważ w większości pracuje on w domu.
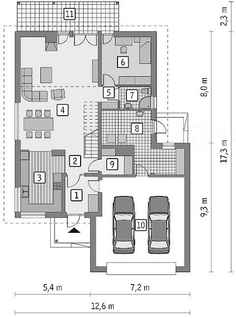
Dwu-stanowiskowy garaż-konieczny punkt naszego domu połączony jest z dużą kotłownią, która ma osobne wyjście na zewnątrz co powoduje, że przestrzeń ta jest bardziej funkcjonalna.
Rzut kondygnacji projektu Murator M128 Promienny dzień - Rzut parteru, źródło: extradom.pl
Na poddaszu została zaprojektowana bardzo
praktyczna strefa nocna.
Dużym atutem tej przestrzeni jest główna sypialnia,
która połączona z garderobą i łazienką tworzy ciekawą całość.
Tak garderoba to coś co mam w naszym obecnym mieszkaniu i to taki domowy MUST HAVE!
Nie wyobrażam sobie nie mieć jej w nowym domu.
A co ważne, dzięki temu rozwiązaniu, gdzie w domu nie musimy stawiać dużej ilości szaf na ubrania wnętrze to jest bardzo komfortowe i niezwykle funkcjonalne. W tej części domu znajdują się pozostałe dwie sypialne, które mają wspomniane już wcześniej balkony francuskie. Zaprojektowana została tutaj także trzecia łazienka, a także pomieszczenie gospodarcze, które może być zaaranżowane na pralnię.
Tak garderoba to coś co mam w naszym obecnym mieszkaniu i to taki domowy MUST HAVE!
Nie wyobrażam sobie nie mieć jej w nowym domu.
A co ważne, dzięki temu rozwiązaniu, gdzie w domu nie musimy stawiać dużej ilości szaf na ubrania wnętrze to jest bardzo komfortowe i niezwykle funkcjonalne. W tej części domu znajdują się pozostałe dwie sypialne, które mają wspomniane już wcześniej balkony francuskie. Zaprojektowana została tutaj także trzecia łazienka, a także pomieszczenie gospodarcze, które może być zaaranżowane na pralnię.
Projekt domu Murator
M128 Promienny dzień, źródło: extradom.pl
Nowoczesna bryła budynku, prosta i
klasyczna elewacja oraz doskonale rozplanowany układ pomieszczeń sprawiają, że
projekt domu Promienny dzień - Murator M128 jest bardzo ciekawym rozwiązaniem
nawet dla wymagającego Inwestora.
Szczególnie dla osób, które lubią interesujące projekty, szukają funkcjonalnego domu i cenią sobie kontakt z przyrodą.
Szczególnie dla osób, które lubią interesujące projekty, szukają funkcjonalnego domu i cenią sobie kontakt z przyrodą.
Podoba mi się i szczerze biorę go pod uwagę jako pierwszy projekt, który wybieram jako idealny dla naszej rodziny i naszych potrzeb.
A co Wy sądzicie o tym domu? Co byście dodali co zamienili?
Zapraszam szczerze na stronę https://www.extradom.pl/ jeśli szukacie dobrego i praktycznego projektu na dom.
Pozdrawiam
PM
A co Wy sądzicie o tym domu? Co byście dodali co zamienili?
Zapraszam szczerze na stronę https://www.extradom.pl/ jeśli szukacie dobrego i praktycznego projektu na dom.
Pozdrawiam
PM





Bardzo podoba mi się zwarta bryła budynku. Prosta, bez wykuszy i lukarn, za to ze wspaniałym tarasem nad garażem. Taki dom jest nie tylko ekonomiczny w budowie, ale i energooszczędny. Dzięki dużym przeszkleniom całość nabiera nowoczesnego charakteru, a pomieszczenia są obficie doświetlone (co jest ważne zwłaszcza w okresie jesień-zima). Kiedy wybieraliśmy projekt szukaliśmy właśnie takich domów – z funkcjonalnym rozkładem pomieszczeń i o możliwie najprostszej konstrukcji. No i koniecznie z garderobą przystającą do sypialni :) Pozdrawiam
OdpowiedzUsuńGdy budowaliśmy dom nie mieliśmy pojęcia o tym jak dużą korzyść da nam posiadanie garderoby.Tak od niechcenia się na nią zdecydowaliśmy.Dziś wiem,że brak garderoby byłby ogromnym błędem.Bardzo podoba mi się dom, który wybrałaś.Anika
OdpowiedzUsuńŁadna, ponadczasowa bryła. Za kilkanaście lat jak się spojrzy to nie bedzie wiadomo w jakich latach był budowany. Teraz wszyscy stawiaja na nowoczesne bryły.Ja wole się ponadczasowego i klasycznego :)
OdpowiedzUsuńpozdrawiam
Pewnie, super ;)!
OdpowiedzUsuńTrzymam kciuki za realizację.
Ja akurat na zewnętrzny wygląd zareagowałem dość sceptycznie. Nie podoba mi się taka prosta bryła. Jest ok, ale nie ma w niej nic porywającego. Czegoś jej brakuje, jest za bardzo klockowata, mało odważna. Jednakże co do układu wnętrza mam całkiem pozytywne wrażenia. Tu już jest fajnie.
OdpowiedzUsuńBardzo ciekawy projekt domu, który nie dość, że wyglądać będzie bardzo ładnie to dodatkowo będzie funkcjonalny. Z pozoru jest to parterowy dom, jednakże aranżacja poddasza może nam pozwolić na wiele możliwości.
OdpowiedzUsuń